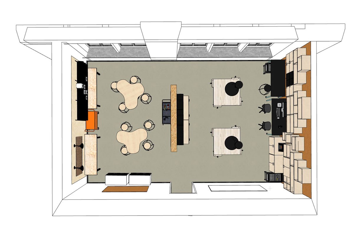
Fyra typklassrum - fyra sätt att inreda ett klassrum
Både skolornas och de enskilda elevernas behov i skolan skiftar. Därför är det viktigt med olika typer av lärmiljöer och klassrum där pedagogiken och inredningen samspelar på bästa sätt. Här presenterar vi fyra typer av klassrumsinredningar: ett multimodalt klassrum, ett aktivt klassrum, ett klassrum som följer Elmemodellen och ett klassrum för makerspace. Allting finns samlat i den här foldern. Bläddra digitalt eller kontakta kundtjänst så skickar vi ett exemplar till dig.
Möt inredningsarkitekterna bakom typklassrummen

Jessica Svensson och Ida Ahlgren är båda inredningsarkitekter på Lekolar och arbetar med att inreda landets skolor och förskolor utifrån olika koncept, förutsättningar och behov.
– Här har vi tagit fram fyra olika inredningsförslag som visar hur du kan skapa lärmiljöer utifrån fyra olika pedagogiska sätt, säger Jessica Svensson.
Våra bilder och skisser kan också användas som inspiration och visa hur många olika möjligheter det finns. Precis som i allt Lekolar gör står den pedagogiska funktionen i centrum. Liksom hållbarheten. Möblerna tål att slitas, med tidlösa färger, former och materialval. De olika lösningarna är framtagna för ett standardklassrum, möjliga att förverkligas på vilken skola som helst.
– Kanske vill du inreda vissa klassrum enligt ett av koncepten eller blanda flera av dem. Möjligheterna är många, säger Jessica Svensson.
I de fall en ny skola ska byggas är det lättare att tänka i ett större perspektiv, bortom klassrumsuppdelningen. En bra lösning är att låta de olika lärmiljöerna finnas inom elevgruppens hemvist.
– Alla elever är inte likadana. Dessutom skiljer sig årskurserna åt. En bredd av lärmiljöer kan därför vara viktig, säger Ida Ahlgren.
Vill du att våra inredningsarkitekter hjälper dig med inredningen av lärmiljöerna på din skola? Välkommen att kontakta din lokala säljare så träffar vi dig gärna för ett förutsättningslöst möte.






